
천장은 단순히 공간을 구획하는 역할을 넘어, 인테리어의 중요한 요소로 자리 잡았습니다. 다양한 디자인과 기능을 갖춘 천장재가 등장하면서, 건축물의 분위기와 개성을 표현하는 데 중요한 역할을 하고 있습니다. 이번 글에서는 비싼 금속 천정재 대신 많이 활용되고 있는 경량 천정재의 대표적인 종류인 엠바, 파워바, 티바에 대해 자세히 살펴보고, 각각의 장단점과 활용 팁을 공유합니다. 많은 경량 천정재는 기본적으로 천정에 달대볼트를 시공하고 달대볼트에 클립을 이용해 캐링 찬넬로 보강하고 캐링 찬넬에 엠바 혹은 티바를 클립으로 엮어 하나의 천정 마감재를 붙이는 형태로 조성됩니다. 특이하게 파워바의 경우 파워바로 보강을 하고 파워바로 골조를 설치하는 구조로 이루어집니다. 오늘은 가장 널리 이용되는 LGS(Light Gauge Steel) 시스템에 대해 이야기하도록 하겠습니다.

엠바(M-Bar)
엠바는 경량 철골 천정 시스템에서 가장 널리 사용되는 얇은 강판재입니다. 일반적으로 두께 0.5mm ~ 0.7mm의 강판을 사용하며, 천정에 달대볼트를 시공하고 달대볼트 이후 캐링찬넬에 클립으로 엠바를 거는 기본적인 형태로 시공합니다. 엠바는 가볍고 설치가 용이하며, 경제적인 천장 마감재로 인기가 높습니다. 가볍고 설치가 용이 경제적이며 내화성 및 방음성이 높습니다. 그러나 강도가 낮아 충격에 약해 고중량 마감재의 천정에 작업은 어렵습니다. 주택, 사무실, 공공시설 등 다양한 공간에 적용 가능 좁은 공간에 적합 경제적인 천장 마감을 원할 때 사용되며 쉽게 시공이 가능해 여러 분야에 널리 사용됩니다. 엠바는 주로 천정재로 석고보드를 주로 사용하고 일부 목재를 사용하는 경우가 있습니다. 천정재는 300 간격으로 시공하는 것을 시방으로 하고 위의 캐링 찬넬은 1200 간격 달대볼드는 900~1200 간격으로 시공하는 것을 기본 시방으로 합니다.

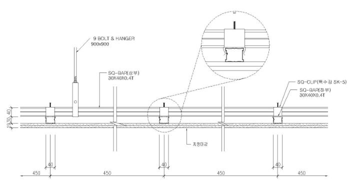
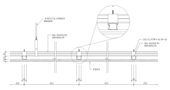
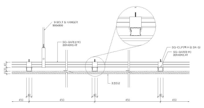
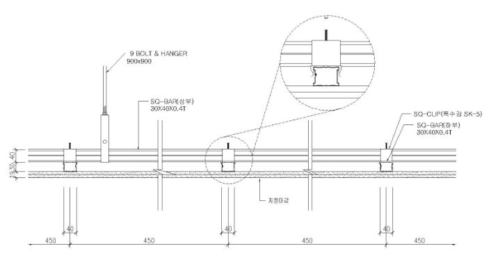
에스큐 바(SQ-Bar)
흔히 파워바라고 불리는 SQ 바는 엠바보다 강도가 높고 내구성이 뛰어난 경량 천정재입니다. 강도가 높아서 일반적인 석고보드 시공보다는 목재 혹은 중량물을 설치할 때 사용됩니다. 일반적으로 두께 0.8mm ~ 1.2mm의 강판을 사용하며, 파워바는 엠바보다 높은 가격대이지만, 강도가 높고 내구성이 뛰어나 다양한 공간에 활용될 수 있습니다. 강도가 높고 내구성이 뛰어남 엠바보다 중량물을 설치할 때 이용되며 엠바보다 가격이 비싼 편입니다. 엠바 시스템보다는 설치가 다소 어려워 시공 난도가 높은 편입니다. 주택, 사무실, 공공시설 등 다양한 공간에 적용 가능 넓은 공간이나 강도가 중요한 공간에 적합한 천장 마감을 원할 때 사용됩니다. 파워바는 대략 450 간격으로 시공되고 보강으로 사용되는 보강 파워바도 450 간격으로 같은 간격으로 시공을 원칙으로 합니다. 달대볼트는 엠바와 마찬가지로 900 간격을 기준으로 시공되는 것이 원칙입니다.

티바(T-Bar)
티바는 천장과 벽체의 마감재로 사용되는 T자 모양의 강판재입니다. 일반적으로 두께 0.5mm ~ 0.7mm의 강판을 사용하며, 티바는 엠바와 파워바보다 설치가 용이하고, 다양한 디자인 연출이 가능합니다. 일반적으로 설치가 용이하고 다양한 디자인 연출 가능 경제적입니다. 강도가 낮아 충격에 약한 편이며 주택, 사무실, 공공시설 등 다양한 공간에 적용 가능 좁은 공간이나 디자인 연출이 중요한 공간에 적합 경제적인 천장 마감을 원할 때 사용됩니다. 티바는 석고보드보다는 마이톤 혹은 텍스라고 불리는 자재를 고정하는 데 사용되며 피스로 시공하지 않고 티바에 제품을 얹는 타입으로 시공되어 시공 용이성과 별도의 점검구가 필요 없는 장점이 있어 사무실 혹은 교실 등 유지관리가 중요한 공간에 많이 사용됩니다. 티바는 마이톤의 크기와 전등 등 마감재의 크기에 따라 다르나 기본적으로 300 간격 보강찬넬의 경우 900 간격으로 달대볼트의 경우 다른 천정재와 마찬가지로 900~1200 간격으로 설치를 원칙으로 합니다.
엠바, 파워바, 티바는 각각 장단점이 있으며, 마감재의 선택에 따라 달라지며 마감재의 중량에 따라 적합한 선택을 해야 합니다.
'인테리어' 카테고리의 다른 글
| 내화성과 내습성이 뛰어난 건재 CRC 보드, 마그네슘 보드 - 인테리어 자재이야기 10 (0) | 2024.03.14 |
|---|---|
| 경량 석고보드 - 인테리어 자재이야기 9 (0) | 2024.03.12 |
| 경량벽체 스터드 종류와 규격 - 인테리어 자재이야기 7 (0) | 2024.03.10 |
| 2024년, 봄맞이 자연을 품은 인테리어 트렌드 (0) | 2024.03.09 |
| 무늬목 제조방식에 따른 특성 - 인테리어 자재이야기 6 (0) | 2024.03.08 |